Maison - loué - 6840 Neufchâteau

Maison - à louer - 6840 Neufchâteau
2 1 68,3 m² 1 PEB : D

Description

DYNASTY a le plaisir de vous proposer à la location une charmante maison idéalement située au cœur de Neufchâteau.

À proximité immédiate des commerces et des commodités, cette habitation offre un cadre de vie confortable et pratique, parfaitement adapté pour un couple, une petite famille ou une personne seule.

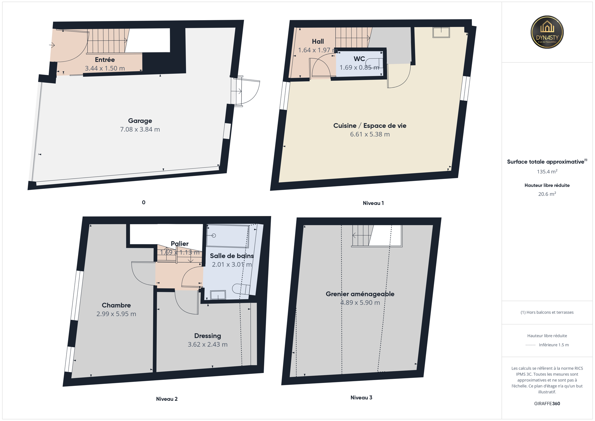
Dès l’entrée, vous accédez au premier étage où vous découvrirez un séjour lumineux avec cuisine ouverte ainsi qu’une toilette séparée. Le deuxième étage se compose d’une chambre spacieuse, d’un dressing et d’une salle de douche avec WC. Au troisième étage, un espace polyvalent pourra servir de bureau, de salle de jeux ou s’adapter à vos besoins.

La maison dispose également d’un petit jardin avec terrasse et d’un garage. Sur le plan technique, elle est équipée de châssis en PVC avec triple vitrage, d’un chauffage central au mazout, d’un boiler électrique et d’un compteur intelligent. Le bien présente un PEB de catégorie D.

Disponible à partir du 1er octobre, cette maison est proposée au loyer de 895 € par mois, hors charges. Une garantie locative équivalente à deux mois de loyer ainsi qu’un état des lieux de 180 € HTVA sont à prévoir.

Alliant charme, confort et situation idéale, cette maison n’attend plus que vous. Pour tout renseignement complémentaire ou pour organiser une visite, n’hésitez pas à nous contacter.

Adresse :

Rue des Fossés 12 Boîte 1 - 6840 Neufchâteau

Général

Référence 7110863
Catégorie Maison
Meublé Non
Nombre de chambres 2
Nombre de salles de bain 1
Jardin Oui
Surface du jardin 26 m²
Garage Oui
Terrasse Oui
Parking Oui
Surface habitable 68,3 m²
Surface du terrain 89 m²
Disponibilité 01/10/2025

Bâtiment

Année de construction 1850
Nombre de garage 0
Parking intérieur Oui
Parking extérieur Non
Année de rénovation 2022
Parking(s) intérieur (nombre) 1
Parking(s) extérieur (nombre) 0

Nom, catégorie & situation

Nombre d'étages (numéro) 3

Equipement de base

Accès handicapés Non
Cuisine Oui
Chauffage (ind/coll) (type (ind/coll)) individuel
Ascenseur Non
Double vitrage Oui
Chauffage (Format/energie) mazout (chauf. centr.)
Type de cuisine équipée
Sdb (Type) douche
Double vitrage (type) isol. thermique et acoustique

En chiffres

Nbre de toilette(s) (nombre) 2
Nombre de sdd 1
Chambre 1 (surface) 15.5 m²
Chambre 2 (surface) 10.5 m²
Chambre 3 (surface) 10 m²
Largeur de façade 7.5
Nbre de terrasse(s) (nombre) 0
Salle de séjour (surface) 25 m²
Cuisine (surface) 3.5 m²

À proximité

Magasins (distance (m)) 100
Écoles (distance (m)) 120
Transports en commun (distance (m)) 50
Magasins Oui
Ecoles Oui
Transports en commun Oui
Autoroute Oui
Autoroute (distance (m)) 5000

Charges & Coûts

Charges locataire (montant) 0 €
Garantie locative (nombre de mois) 2
Loué Non

Equipement extérieur

Piscine Non

Domaine juridique

Servitude Non
Destination bâtiment (type) privé - habitation
Type d'intimation pas de correction juridique ou mesure administrative imposée

Raccordements

Égouts Oui
Électricité Oui
Télévision par cable Oui
Câbles téléphoniques Oui
Eau Oui

Équipements techniques

Châssis (Ouvertures) pvc

Spécificités terrain

Type d'environnement central
Type d'environnement 2 calme
Exposition de la façade avant (-) est
Risque d'inondation (type innondation) pas situé en zone inondable
Risque d'inondation 2023 (type innondation) Classe A (aucune chance)

Cadastre

Surface (ha/a/ca) (surf. (ha/a/ca)) 174ca
Revenu cadastral (€) (montant) 959 €

Certificats / Attestations

Certificat d'électricité (oui/non) oui, conforme

Divers

Grenier Oui

Certificats énergétiques

Label PEB (Classe) D
PEB E-SPEC (kwh/m²/an) (Consommation énergétique) 307
Emission CO2 (Emission GES) 75
E total (Kwh/an) 33771
PEB code unique (-) 20171208008383
PEB valide jusqu'au (validité) 08/12/2027
Date du PEB 08/12/2017

Négociations

Date de l'estimation 14/01/2025
Prendre contact pour le bien : 7110863

* Champs obligatoires

Sélection des points d'intérêts
Préférences pour les cookies

La protection de vos données personnelles est importante pour nous. C’est pourquoi nous détaillons ci-dessous les différents services et fonctionnalités du site qui utilisent des cookies et nous vous laissons décider des cookies que vous souhaitez autoriser ou refuser.

Veuillez cependant noter que si vous bloquez certains types de cookies, cela pourrait impacter votre expérience de navigation sur notre site ainsi que les fonctionnalités disponibles.

Nous utilisons des cookies fonctionnels obligatoires pour assurer le bon fonctionnement du site. Ils sont, par exemple, nécessaires pour retrouver le résultat d’une recherche ou enregistrer le choix de la langue.

Certaines fonctionnalités, comme l’affichage de vidéos ou de cartes géographiques, sont assurées via des composants externes développés par des partenaires comme YouTube ou Google. Certains composants utilisent des cookies qui sont susceptibles de permettre à ces tiers de suivre le comportement des internautes afin, par exemple, de réaliser du ciblage publicitaire. L’activation de ces fonctionnalités et des cookies associés est donc soumis à votre consentement.